Learn more about this

Luxury Bungalow.

PLOT AREA
BUILTUP AREA SQFT
CARPET AREA SQFT
BEDROOMS
  • LUXURIOUS DUPLEX LIVING
  • ELEGANT MODERN INTERIORS
  • ROOFTOP TEMPLE WELLNESS
  • SPACIOUS FAMILY COMFORT

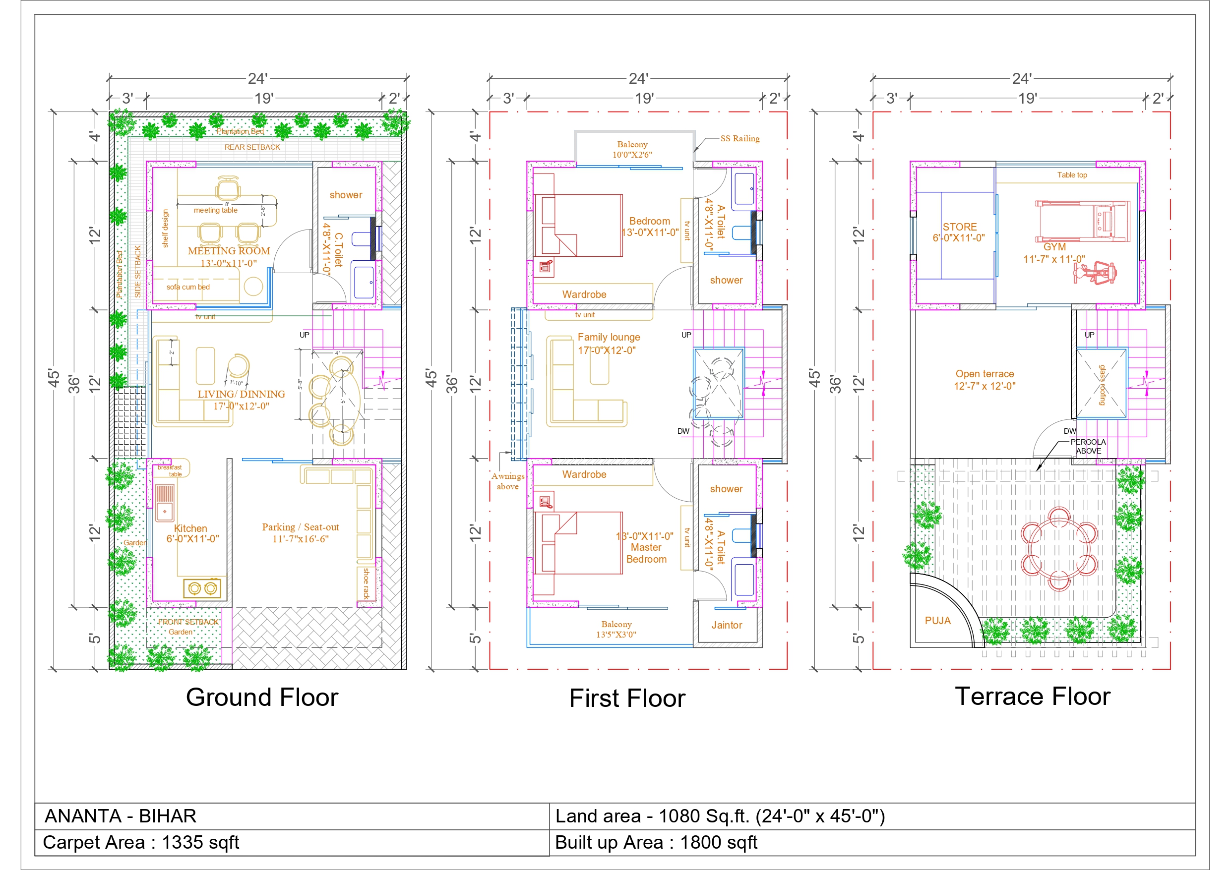
FLOOR PLANS.

About

New Ananta Bungalow.

  • Spacious layout with 3 bedrooms, 2 halls, a semi-open kitchen, and 3 toilets — designed for comfortable family living.
  • Two master bedrooms come with attached toilets featuring Italian tiles, offering a modern and elegant feel.
  • The double-height roof cut-out enhances natural light, ventilation, and adds a grand visual appearance.
  • Two large balconies for the master bedrooms plus French-style balconies in the hall provide great outdoor views and aesthetics.
  • Enjoy a rooftop pergola seating area, puja space, and an attached gym room — your personal wellness zone.
  • A flexible room that can be used as a guest room, study room, parents’ room, and includes a dedicated puja cabinet.
  • Dedicated gardening space and premium parking tiles elevate the overall living experience and enhance the home’s exterior appeal.

We are using a raft foundation in this building, which offers many benefits:

  • Raft foundations are constructed at shallow depths, requiring less excavation.
  • They are well-suited for soils with low bearing capacity.
  • The loads from the superstructure are redistributed across the entire area.
  • Differential settlement of the soil is minimized.
Area Description
Plot Area
1080 Sqft
Builtup Area
1800 Sqft
Carpet Area
1335 Sqft
Bedrooms
3
Bathroom
3
Parking/Shop
1
Floors
3
Bungalow

photo gallery.

contact person.

manager

VASTU VIHAR

+91(95340-95340)
info@vastuvihar.org
send now